REX
Anna 149
Hamarosan
125 + 24 nm, Fokozottan energiatakarékos, könnyűszerkezetes családi házak. A rendszer rendelkezik, NMÉ/ETA minősítéssel, amit bankok hitelfelvétel esetén elfogadnak. Minőségi alapanyagokból, hosszú élettartamra tervezve, minden hatályos előírásnak megfelel. Bármilyen méretben és formában, tervek alapján megépítjük. Lakáshitelek, CSOK, támogatások felvehetőek rá.
Adatok
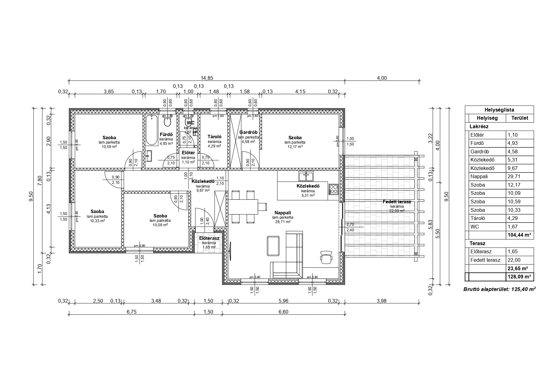
Méret: bruttó 125 nm + 24 nm terasz
Előtér: 1,10 nm
Fürdő: 4,93 nm
Gardrob: 4,58 nm
Közlekedő 1: 5,31 nm
Közlekedő: 9,67 nm
Nappali: 29,71 nm
Szoba 1: 12,17 nm
Szoba 2: 10,09 nm
Szoba 3: 10,59 nm
Szoba 4: 10,33 nm
Tároló: 4,29 nm
WC: 1,67 nm
Terasz: 22 nm
Előterasz: 1,65 nm
Külső fal rétegrend
1
Nemesvakolat
2
10cm EPS homlokzati szigetelés
3
15mm OSB3
4
6x16 cm KVH (szárított, ragasztott, hossztoldott) faváz
5
15cm ásványgyapot hang és hőszigetelés
6
Párazáró hótükör fólia
7
BRAMAC ellenlécezés légréssel, ebben kerül elvezetésre a gépészet és villamosság egy része
8
Gipszkarton
Födém + tető rétegrend
1
Fagerendaváz
2
30cm kőzetgyapot hang és hőszigetelés
3
Párazáró hőtükör fólia
4
Bramac ellenlécezés légréessel
5
Gipszkarton
6
12mm OSB3
7
Bramac betoncserép tetőhéjalás
Padló felépítmény
1
Bitumes vízszigetelés
2
10 cm AT-N 100 lépésálló EPS
3
Hőtűkőr fólia
4
7 cm estricht beton - szálerősítéssel, gépi simítással
Szigetelés
Szigetelés: 25 cm (15 cm kőzetgyapot, 10 cm EPS)
Tető: 30 cm-es szigeteléssel ellátott, egy oldalt zárt födém
Padló: 10 cm-es lépésálló aljzatszigetelés
Nyilászárók
Bejárati ajtó - műanyag több ponton záródó
6 légkamrás, 3 rtg üvegezésű, műanyag ablakok, 75mm beépített mélységű, kívül-belül fehér színben, ablak párkányokkal
Készültségi fokozat
Kívül kész, belül a gipszkartonozásig a kiállásokkal, hálózatokkal, az itt feltüntetett műszaki tartalommal. Amit nem tartalmaz: teraszok, festés, burkolás, fűtés, szaniter, alap.
A beton- vagy más alap elkészülte után, 8-10 hét alatt a ház felépül a helyszínen.
Komplett villany hálózat
Gipszkarton borítás és szerelék (födémre + falakra)
Komplett víz hálózat
Vízelvezető csatorna (RAL színben kérhető)
Tetőfedés BRAMAC betoncserép
A ház ára
Hamarosan
Fizetési feltételek
Megbeszélés alapján ütemezve
Hitel és támogatás lehetőség
A házakhoz elérhető a CSOK és az egyéb lakóépület-finanszírozási bankhitelek, ÉMI , NMÉ, ETA minősítéssel rendelkeznek. Info: https://redboxhaz.hu/epitesi-hitel/
Opcionálisan választható
Tetőfedés kérhető kerámia cserép, korcolt lemez, vagy zsindely fedéssel is
Prémium fűtési rendszerek
Prémium külső nyílászárók, többféle színben
Hőszivattyús fűtés vagy hőszivattyús klíma
Napelemes rendszer
Elektromos padlófütés
Alaprajz
Alaprajz
Időpontfoglalás
Gyere el és nézd meg házainkat
a Redbox Ház – BemutatóParkjában!
Visszahivás
Amennyiben kérdésed lenne, vagy informálódnál keress kérj visszahívást.
Ajánlatkérés
Pár kattintás és tudd meg,
hogy mennyiért lehet
Konténerházad!
Hitel lehetőség
Magánszemélyeknek és Cégeknek is részletfizetési lehetőség!







